For a better experience, we recommend you to orientate your device




























































The project is located along the main route to the well-known destination of Koh Yor in Songkhla. The owner envisions an iconic piece
of architecture that represents the identity of the province without relying on traditional architectural expressions. Instead, the design draws
inspiration from the form, atmosphere, and landscape of Koh Yor to interpret Songkhla through a contemporary architectural language.
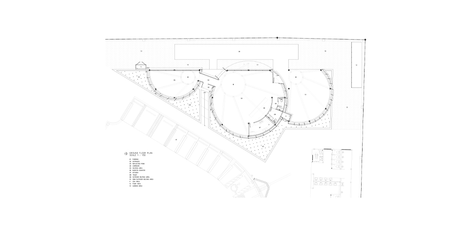
Privacy and controlled visual experience are key design drivers. From the exterior and the adjacent gas station, the interior of the coffee shop
and the forest view are intentionally concealed. This strategy enhances privacy and creates a sense of anticipation, allowing the landscape to
be gradually revealed as visitors move deeper into the site, adding experiential value and comfortfor customers.
The main entrance follows the overall design concept, with a pathway designed as a walkway to a pier. This entrance sequence crosses
a reflective pond that represents the sea, reinforcing the connection between architecture, water, and the maritime character of Songkhla.
The water feature, together with subtle lighting dots, is inspired by the lights of fishing boats floating on the sea, supporting and
complementing the main building.
At the heart of the project lies a large green zone filled with mature trees, forming a forest-like environment and offering the best view on the site.
The building is strategically rotated to face this view, maximizing visual connection with nature. An outdoor terrace is placed behind the green
space, creating a tranquil seating area that integrates architecture with landscape. This forest-facing zone serves as the emotional and spatial
core of the project, where nature, architecture, and user experience converge.
Architects: Narucha Kuwattanapasiri, Siriporn Rueangsiri, Phuvanart Roongsang
Interior Architects: Narucha Kuwattanapasiri, Siriporn Rueangsiri
Landscape Architect: -
Lighting Architect: Lundi Light Design Co .,Ltd.
Structural Engineer: Ekkapong Yakan
System Engineers: Sutida Sirimungkla, Tanakorn Eaksongkiat, Rawiwan Tiwawong
Contractor: -
Photographs: Soopakorn Srisakul




























































The project is located along the main route to the well-known destination of Koh Yor in Songkhla. The owner envisions an iconic piece
of architecture that represents the identity of the province without relying on traditional architectural expressions. Instead, the design draws
inspiration from the form, atmosphere, and landscape of Koh Yor to interpret Songkhla through a contemporary architectural language.
Privacy and controlled visual experience are key design drivers. From the exterior and the adjacent gas station, the interior of the coffee shop
and the forest view are intentionally concealed. This strategy enhances privacy and creates a sense of anticipation, allowing the landscape to
be gradually revealed as visitors move deeper into the site, adding experiential value and comfortfor customers.
The main entrance follows the overall design concept, with a pathway designed as a walkway to a pier. This entrance sequence crosses
a reflective pond that represents the sea, reinforcing the connection between architecture, water, and the maritime character of Songkhla.
The water feature, together with subtle lighting dots, is inspired by the lights of fishing boats floating on the sea, supporting and
complementing the main building.
At the heart of the project lies a large green zone filled with mature trees, forming a forest-like environment and offering the best view on the site.
The building is strategically rotated to face this view, maximizing visual connection with nature. An outdoor terrace is placed behind the green
space, creating a tranquil seating area that integrates architecture with landscape. This forest-facing zone serves as the emotional and spatial
core of the project, where nature, architecture, and user experience converge.
Architects: Narucha Kuwattanapasiri, Siriporn Rueangsiri, Phuvanart Roongsang
Interior Architects: Narucha Kuwattanapasiri, Siriporn Rueangsiri
Landscape Architect: -
Lighting Architect: Lundi Light Design Co .,Ltd.
Structural Engineer: Ekkapong Yakan
System Engineers: Sutida Sirimungkla, Tanakorn Eaksongkiat, Rawiwan Tiwawong
Contractor: -
Photographs: Soopakorn Srisakul




























































The project is located along the main route to the well-known destination of Koh Yor in Songkhla. The owner envisions an iconic piece
of architecture that represents the identity of the province without relying on traditional architectural expressions. Instead, the design draws
inspiration from the form, atmosphere, and landscape of Koh Yor to interpret Songkhla through a contemporary architectural language.
Privacy and controlled visual experience are key design drivers. From the exterior and the adjacent gas station, the interior of the coffee shop
and the forest view are intentionally concealed. This strategy enhances privacy and creates a sense of anticipation, allowing the landscape to
be gradually revealed as visitors move deeper into the site, adding experiential value and comfortfor customers.
The main entrance follows the overall design concept, with a pathway designed as a walkway to a pier. This entrance sequence crosses
a reflective pond that represents the sea, reinforcing the connection between architecture, water, and the maritime character of Songkhla.
The water feature, together with subtle lighting dots, is inspired by the lights of fishing boats floating on the sea, supporting and
complementing the main building.
At the heart of the project lies a large green zone filled with mature trees, forming a forest-like environment and offering the best view on the site.
The building is strategically rotated to face this view, maximizing visual connection with nature. An outdoor terrace is placed behind the green
space, creating a tranquil seating area that integrates architecture with landscape. This forest-facing zone serves as the emotional and spatial
core of the project, where nature, architecture, and user experience converge.
Architects: Narucha Kuwattanapasiri, Siriporn Rueangsiri, Phuvanart Roongsang
Interior Architects: Narucha Kuwattanapasiri, Siriporn Rueangsiri
Landscape Architect: -
Lighting Architect: Lundi Light Design Co .,Ltd.
Structural Engineer: Ekkapong Yakan
System Engineers: Sutida Sirimungkla, Tanakorn Eaksongkiat, Rawiwan Tiwawong
Contractor: -
Photographs: Soopakorn Srisakul
The project is located along the main route to the well-known destination of Koh Yor in Songkhla. The owner envisions an iconic piece
of architecture that represents the identity of the province without relying on traditional architectural expressions. Instead, the design draws
inspiration from the form, atmosphere, and landscape of Koh Yor to interpret Songkhla through a contemporary architectural language.
Privacy and controlled visual experience are key design drivers. From the exterior and the adjacent gas station, the interior of the coffee shop
and the forest view are intentionally concealed. This strategy enhances privacy and creates a sense of anticipation, allowing the landscape to
be gradually revealed as visitors move deeper into the site, adding experiential value and comfortfor customers.
The main entrance follows the overall design concept, with a pathway designed as a walkway to a pier. This entrance sequence crosses
a reflective pond that represents the sea, reinforcing the connection between architecture, water, and the maritime character of Songkhla.
The water feature, together with subtle lighting dots, is inspired by the lights of fishing boats floating on the sea, supporting and
complementing the main building.
At the heart of the project lies a large green zone filled with mature trees, forming a forest-like environment and offering the best view on the site.
The building is strategically rotated to face this view, maximizing visual connection with nature. An outdoor terrace is placed behind the green
space, creating a tranquil seating area that integrates architecture with landscape. This forest-facing zone serves as the emotional and spatial
core of the project, where nature, architecture, and user experience converge.
Architects: Narucha Kuwattanapasiri, Siriporn Rueangsiri, Phuvanart Roongsang
Interior Architects: Narucha Kuwattanapasiri, Siriporn Rueangsiri
Landscape Architect: -
Lighting Architect: Lundi Light Design Co .,Ltd.
Structural Engineer: Ekkapong Yakan
System Engineers: Sutida Sirimungkla, Tanakorn Eaksongkiat, Rawiwan Tiwawong
Contractor: -
Photographs: Soopakorn Srisakul




